PROYECTOS
CÁLCULO ESTRUCTURAL DE VIVIENDA EN TOLEDO

 
				 
				 
				 
				 
				 
				Cliente: G. Barros
Proyecto: Arq. Pablo Giugno
Ubicación: Toledo
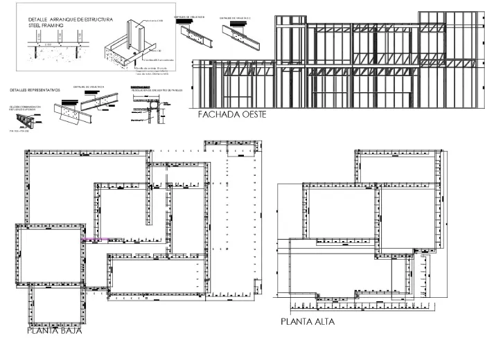
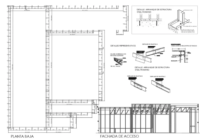
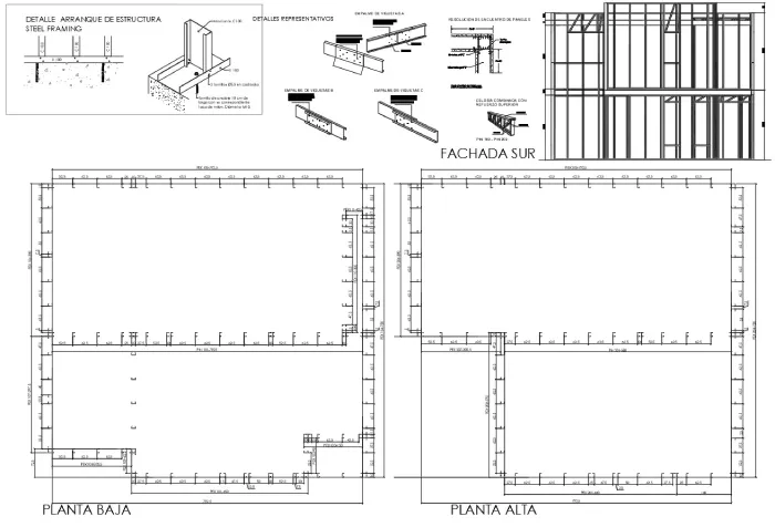
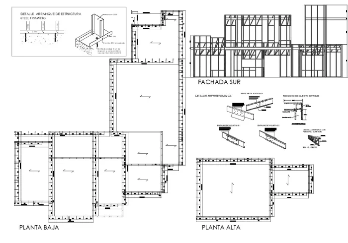
Hemos realizado el cálculo estructural de esta vivienda unifamiliar ubicada en Toledo, resuelta con una planta baja de 220.00m2 y una planta primera de 125.40m2, totalizando 345.40m2 de proyecto.
La vivienda se desarrolla con un esquema de plantas de geometría concentrada con cubierta transitable plana para ambos niveles, con importantes voladizos.
Tiene 4 dormitorios, 3 baños, cocina, lavadero, cuarto de máquinas y dos amplios salones en planta baja y dos dormitorios con baño en suite y vestidor en un espacio vinculado a un gimnasio en planta primera. Todo se conecta con el exterior mediante amplios ventanales. 
El cálculo estructural da como resultado una resolución con paneles interiores y exteriores con PGC 100*47*1.2mm en su totalidad, formando triangulaciones en dinteles y celosías que colaboran con la resistencia de los desplazamientos laterales. Tanto los forjados como las cubiertas fueron resueltas con PGC 200*47*1.2mm.
La incidencia de kg de acero por metro cuadrado de superficie es de 26.23kg maximizando la eficiencia del dimensionado de la estructura.
 
				 
				 
				 
				 
				 
				 
				 
				 
				 
				 
				 
				 
				 
				 
				 
				 
				 
				
 
								
															 
								
															 
								
															 
								
															 
								
															 
								
															
 
								
															 
								
															 
								
															 
								
															 
								
															 
								
															
 
								
															 
								
															 
								
															 
								
															 
								
															 
								
															
 
								
															 
								
															 
								
															 
								
															 
								
															